25 & 25a Matheson Road, Millicent
Tranquility, Charm & a Rare Subdivision Bonus..






































Description
“Old Rose Villa” 25 & 25a Matheson Road, Millicent – where country serenity meets modern comfort, just 2 minutes from town.
Set back on sought after Matheson Road, well-known for its avenue of established trees and tranquil setting, this solid bluestone and red brick residence with cedar features exudes warmth and character from the moment you arrive. Step inside and you’ll find a home that balances heritage touches with thoughtful updates, creating an inviting and timeless country feel.
One of the major bonuses to purchasing this stunning property is that the owners have already subdivided off a separate allotment of approximately 4,410m², now on its own title. This leaves the residence on a generous 5,743m² (approx.). Whether you choose to resell the extra block, hold it as an investment, or simply enjoy the additional space, this is a rare opportunity to secure a home that can also help you recoup costs in the future.
A Home with Heart:
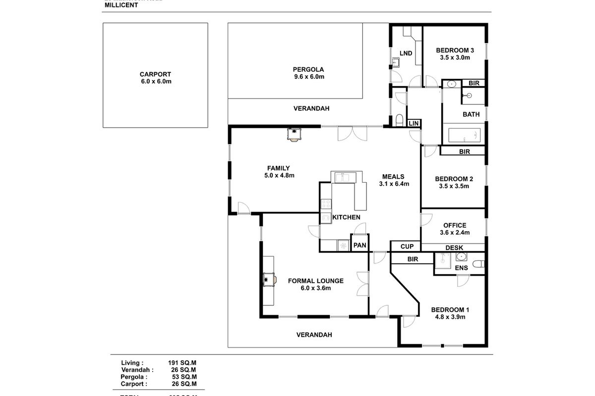
The grand formal lounge welcomes you with intricate ceiling roses, an ornate stone fireplace and original character details, while the hub of the home lies in the expansive open plan kitchen and dining space. With high timber ceilings, slate flooring, and a brand-new kitchen featuring a large island, walk-in pantry, induction cooktop paired with a pyrolytic electric oven and abundant storage, this is a space designed for both cooking and entertaining.
A cosy family room adjoins the kitchen, complete with wood fire, ceiling fan and plush carpet square– the perfect place to unwind.
Master suite with feature fretwork, sitting nook, built-in robes and ensuite and two additional bedrooms with built-in wardrobes. Spacious main bathroom with spa bath, shower alcove and vanity area
Dedicated study/office with built-in desk and lounge seat – or potential 4th bedroom.
Ducted reverse cycle air conditioning across main living zones
Outdoor Living & Entertaining:
Flowing seamlessly from the dining area, an impressive pergola offers year-round entertaining with its own built-in wood fire – perfect for BBQs, family gatherings or a glass of wine by the fire on a cool evening.
The grounds are an enchanting country garden with an extraordinary variety of established trees, shrubs and flowering plants – a dream for the garden enthusiast ready to restore and nurture its beauty.
Adding to the appeal, the larger shed has been transformed with a rustic country bar – creating a relaxed mancave atmosphere that’s perfect for unwinding after a day in the garden. Whether it’s a cold beer with your mates or bubbles with friends, this space is made for good times.
Land, Water, Services & Shedding:
Main residence positioned on approx. 5,743m² after subdivision
Separate subdivided title of approx. 4,410m² included in the sale
Bore water for the gardens + two large concrete rainwater tanks plumbed to the home
Double carport + 2-bay garage with power and concrete floor
Further 3-bay shed with roller doors, concrete floor and power
Second driveway for easy access and future flexibility
Large 10kw Solar plus generator outlet installed
Lifestyle Location:
Despite its peaceful setting, 25 Matheson Road is only a short 2-minute drive to Millicent’s town centre, schools, shops, and sporting facilities. It offers the perfect blend of country charm and modern convenience.
An enchanting country home with a smart subdivision bonus – a property that’s beautiful today, and valuable tomorrow.
GENERAL PROPERTY INFO
Property Type: Brick and Colorbond
Zoning: Rural neighbourhood
Council: Wattle Range Council
Year Built: 1987
Land Size: House 5743m2 & Block 4410m2
Rates: House $2606 and Block 600 per annum
Lot Frontage: House 45.6m and Block 35m
Lot Depth: House 126m and Block 126m
Aspect front exposure: Northeast
Water Supply: 50,000 Lt Rain water & Bore supply
Services Connected: Solar panels 10kw
Certificate of Title: 6311/929 & 6311/930
Call Fiona and Georgia today to arrange your private inspection and experience the serenity of 25 Matheson Road.
Disclaimer:
Every effort has been made to ensure the accuracy of the information provided in this listing. However, neither the agent nor the vendor accepts any responsibility for errors, omissions, or inaccuracies. Prospective purchasers are advised to carry out their own investigations and obtain independent advice. All areas, dimensions, and distances are approximate and subject to final survey. Any reference to potential development, subdivision, or use is subject to council approval (STCA).
Your email address will not be published. Required fields are marked *