65 George Street, Millicent
Blue Chip Commercial Building



















Description
Main street investment leased to a long-standing regional accounting firm. Quality professional office accommodation with reception, offices, meeting, staff amenities and rear access, set amongst banks, cafés and civic services on George Street. A low-maintenance, set-and-forget addition to any portfolio.
Property snapshot:
• Address: 65 George Street, Millicent SA 5280 (Wattle Range LGA) - the town’s main commercial strip.
• Improvements: Quality maintained professional office accommodation presenting to George Street with traditional main-street frontage, reception and client meeting areas, partitioned offices, staff amenities and rear access.
• Land use: Commercial/office. (Suburban Activity Centre zoning]
• Parking & access: Street parking to George Street, rear access/parking.
• Tenant: Whole building tenanted by a respected regional accounting firm with more than 50 years of service in Millicent.
• Income: Form 1 Disclosure statement available upon request. New lease commenced August 2025 expiring July 2028. Plus 1 x right of renewal expiring July 2031
• Title: Certificate of Title Volume 5797/129. Nil encumbrances or easements
Investment highlights:
• Blue-chip tenant covenant: Long-standing accountant in continuous operation at this address.
• Main-street position: George Street is Millicent’s prime retail/professional spine, drawing daily local traffic and regional clients.
• Low-maintenance improvements: Practical office layout for professional services. Maintenance and maintained up to date.
• Tight regional supply: Professional suites in walk-up main-street locations are tightly held, particularly with established tenants.
• Set-and-forget appeal: Secure cash flow once lease particulars are confirmed; ideal for SMSFs and private investors.
Tenancy:
Lease: [3 + 3 years from 1st August 2025]
Rent: $44,745 p.a. + GST + outgoings
Location advantages:
• Walkable CBD setting near banking, cafés and civic services
• Regional service hub for the Limestone Coast, servicing Millicent, coastal townships and surrounding primary industry.
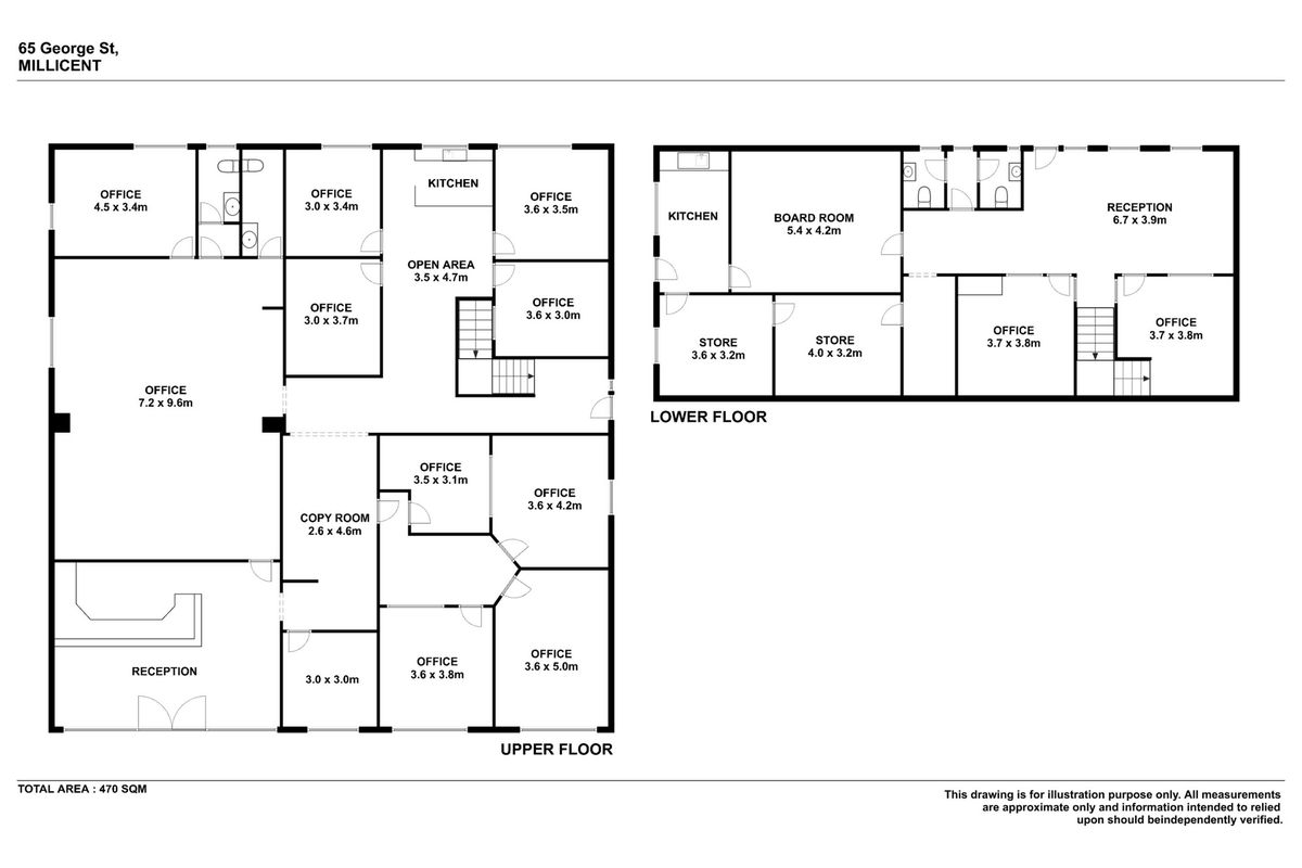
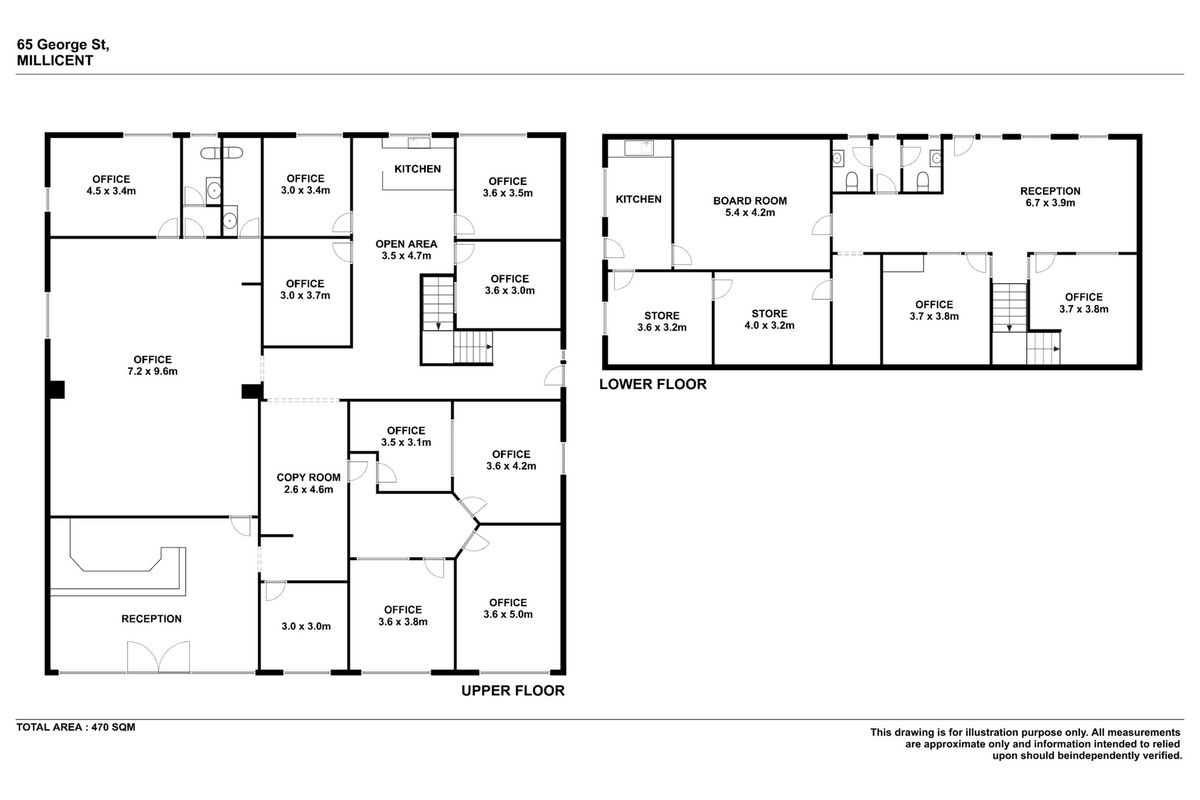
Accommodation & layout:
• Welcoming reception and client waiting area with good natural light
• 12 private offices/consult rooms, plus open workstation zone
• Boardroom/meeting room
• Staff kitchenette x 2, file, copy room, store and amenities
• Internal stairs separating potential sub lease offices on lower level
• Secondary entry/rear access
Due diligence pack (Form 1 Disclosure statement available on request)
• Copy of current lease disclosure statement
• Outgoings statement (council, water, insurance)
• Any works/maintenance history supplied by vendor/tenant
Pricing & terms:
• For Sale: Contact Agent $600,000 - $630,000
• Settlement: Standard or by negotiation; existing lease to continue.
Your email address will not be published. Required fields are marked *