Commanding an awe-inspiring position overlooking Rivoli Bay, this architecturally striking residence delivers a rare fusion of luxury, scale, and coastal elegance. With endless sea views and a bold structural design inspired by the bow of a grand ocean vessel, this exceptional home offers an immersive seaside lifestyle of distinction.
From sunrise to sunset, the panorama is endlessly captivating—fishing boats departing at dawn, returning at dusk, and the ever-changing textures of sea and sky forming a living artwork enjoyed from multiple vantage points throughout the home.
Designed for Sophisticated Coastal Living -
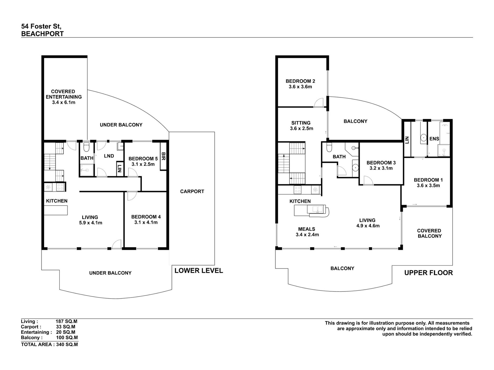
Purposefully designed to accommodate a range of luxury lifestyles, this five-bedroom, three-bathroom residence effortlessly caters to refined family living, multi-generational gatherings, exclusive holiday accommodation, or an elegant semi-retirement retreat. Its thoughtful layout provides both grand entertaining spaces and intimate private zones, ensuring comfort and privacy for all.
Lower Level – Private Guest or Retreat Suite -
The lower level presents a beautifully appointed, fully self-contained living zone, ideal for guests or extended family. Tiled walkways lead to a well-equipped kitchenette featuring a double sink, oven with cooktop and grill, breakfast bar, dining area, and inviting lounge. Two spacious, carpeted bedrooms are positioned on this level—one with built-in storage—serviced by a stylish bathroom with shower and toilet. Additional storage is discreetly tucked beneath the staircase.
Glass doors open to a generous tiled pergola, thoughtfully designed for all-season enjoyment, bathed in natural light and sheltered from the elements.
Upper Level – Elevated Luxury & Panoramic Views -
A solid Tasmanian Oak staircase ascends to the main living level, where breathtaking coastal views immediately command attention. Expansive sliding glass doors create a seamless transition to the front and side entertaining decks—perfect for alfresco dining and sunset gatherings overlooking the bay.
The designer kitchen is both functional and refined, featuring an island bench with breakfast bar, Miele dishwasher, double sink, under-bench electric oven, generous pantry storage, refrigerator space, and split-system climate control. Flowing open-plan living and dining areas are complemented by a secondary private sitting room, offering versatility for relaxation or entertaining.
Three generously proportioned bedrooms are located upstairs, including the luxurious main suite which opens directly onto the front deck and enjoys a full ensuite complete with bath and bespoke built-in storage. A third sun-filled sitting room provides a peaceful sanctuary and opens onto a private rear balcony—an idyllic retreat for quiet reflection.
Outdoor Amenities & Prestige Practicality -
A drive-through carport leads to a powered double shed with concrete flooring, ideal for secure storage or workshop use. The fully paved rear grounds ensure minimal maintenance while offering additional off-street parking.
A Rare Opportunity in an Exclusive Coastal Community -
Homes of this calibre in Beachport are exceptionally rare. This is a once-in-a-lifetime opportunity to secure a statement residence that delivers architectural presence, luxury comfort, and one of the region’s most coveted coastal outlooks.
Properties in Beachport are highly sought-after and rarely available. Don't miss your chance to experience the magic of this coastal paradise. Schedule your private inspection today.
Note - The property has been established as a short-term rental (Airbnb) and is offered for sale on a walk-in, walk-out basis.
GENERAL PROPERTY INFO
Property Type: 2 Storey, Brick veneer rendered and blue board/ hardiflex upper.
Zoning: Neighbourhood
Council: Wattle Range Council
Year Built: 1982 [Extensive renovations 2002/03]
Land Size: 697m2
Rates: $4,375.00 per annum
Lot Frontage: 15.5m
Lot Depth: 46.2m
Aspect front exposure: East
Water Supply: Town supply
Services Connected: NBN
Certificate of Title Volume 5223 Folio 369
Features
- Air Conditioning
- Split-System Air Conditioning
- Balcony
- Deck
- Outdoor Entertainment Area
- Shed
- Built-in Wardrobes
- Dishwasher









































































