121 Williams Road, Millicent
Solid Limestone Home on Spacious Corner Allotment
















Description
Positioned on a generous 978m² corner block, this solid limestone home with a tiled roof offers a fantastic opportunity for first home buyers, investors, or those looking to downsize into a low-maintenance property.
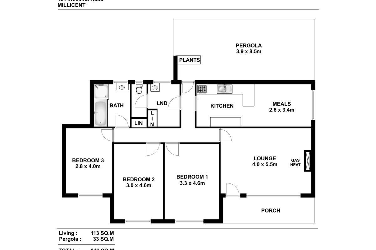
Entering the home, you are welcomed into a light-filled lounge featuring gas heating and a ceiling fan — creating a warm and comfortable space to relax. Large windows invite natural light in, complementing the neutral tones throughout the home.
From here, the layout flows effortlessly through to the open-plan kitchen and dining area — perfect for both everyday meals and entertaining. The kitchen includes a five-burner gas cooktop, electric oven, and original cabinetry in excellent condition, providing plenty of storage and bench space. A window above the sink overlooks the outdoor pergola, offering a pleasant outlook while you cook.
There are three well-sized bedrooms, each fitted with carpet and blinds, providing comfort and practicality.
The bathroom retains its original character, complete with a shower, bath, and vanity, while the toilet is conveniently located off the laundry.
Extra storage is provided by linen cupboards in both the hallway and the well-sized tiled laundry.
Outdoors, the home continues to impress. A paved pergola area provides an ideal space for outdoor entertaining or relaxing, while the fully fenced rear yard ensures privacy and security for children and pets. The property also includes a single car garage, a small garden shed, and established gardens with a mix of lawn and plantings.
Solidly built and well-maintained, 121 Williams Road is a wonderful opportunity to enter the property market or enjoy a relaxed, easy-care lifestyle. Ready to move in or update at your own pace, this home is one not to be missed.
Current rental appraisal $320 - $330 per week approx.
GENERAL PROPERTY INFO:
Property Type: Gambier stone and tile roof
Zoning: Neighbourhood
Council: Wattle Range Council
Year Built: 1969
Land Size: 978m2
Lot Frontage: approx. 24.2m
Lot Depth: approx. 31.8m
Council Rates: $311 per quarter approx.
Aspect front exposure: Southeast
Water Supply: Town supply, Bore [yard only]
Services Connected: Power, Sewer
Certificate of Title Volume 5339 Folio 833
Disclaimer:
Every effort has been made to ensure the accuracy of the information provided in this listing. However, neither the agent nor the vendor accepts any responsibility for errors, omissions, or inaccuracies. Prospective purchasers are advised to carry out their own investigations and obtain independent advice. All areas, dimensions, and distances are approximate and subject to final survey. Any reference to potential development, subdivision, or use is subject to council approval (STCA).
Your email address will not be published. Required fields are marked *