This well presented home is only five years old and offers modern living on a large block of 990m2. It has dual access to the rear yard with space for extra vehicles, caravan or boat. The modern home is in a great location, is light and bright and has views over the city.
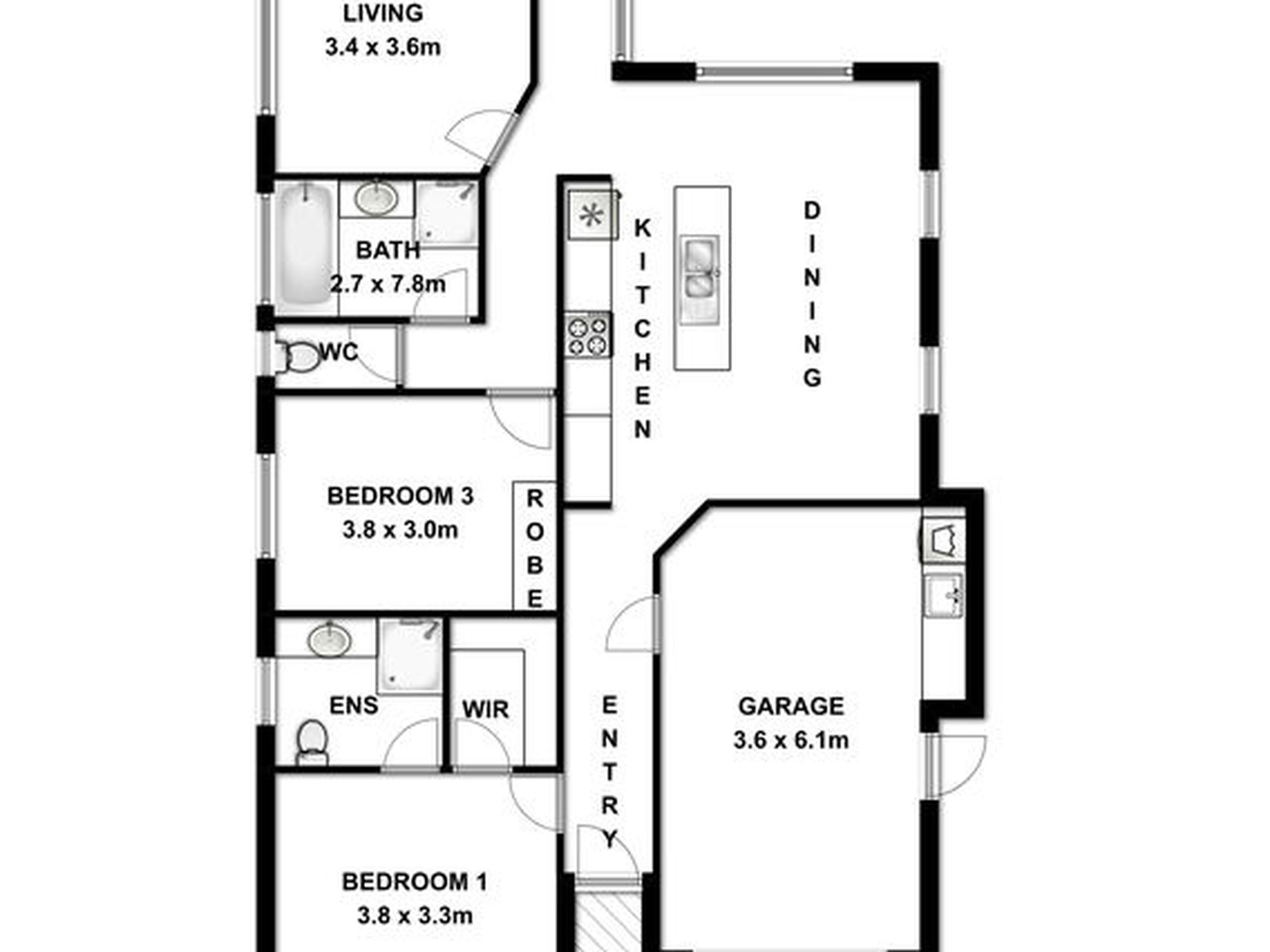
The home itself offers an open plan kitchen, dining, living area. The area is tiled with blinds, the kitchen is well appointed with electric cooking, dishwasher, double sink and pantry. Reverse cycle air conditioning heats and cools the home from here.
Sliding doors lead out to a large, paved outdoor entertaining area in the private rear yard.
There is a separate carpeted Lounge offering a quiet space away from the busy heart of the home, a great space to sit and relax, read a book or get hooked on a netflix series.
There are three bedrooms, all of a generous size and all carpeted with day/night blinds. The master has a walk in robe and tiled ensuite with shower, vanity and toilet. Bedroom two and three have built in robes.
The master bathroom is tiled, neutral and bright, there is a separate bath, shower and vanity and a separate toilet.
There is a single garage under the main roof with remote roller door and internal access door. The Laundry is cleverly tucked away in the garage as well.
The private rear yard is fully enclosed with excellent fencing and gates on both sides for access. Retaining walls and garden beds are established and waiting for someone to create their private, peaceful, garden paradise.
This a low maintenance, modern home in an excellent location and priced to sell. Call today for your private inspection.
Features
- Air Conditioning
- Remote Garage
- Fully Fenced
- Built-in Wardrobes
- Dishwasher



























