Crown land site Short Street and Academy Drive Millicent – Under instructions from the Department of Environment and Water
Offered for sale by Expressions of Interest by 18th August 2023
- Total site of 3.93ha comprising Section 1032, 51 & 52
- Zoned Community Facility [potential could have land use changed STCA]. Suits residential, retirement development and/or community projects
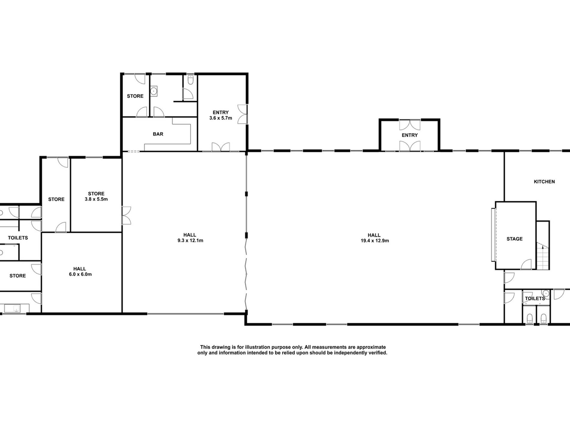
- Large Community Hall facility established, known as The Italian club, built in approx. 1967. Main foyer, bar and partitioned room to main hall. Kitchen and toilet facilities.
- Vibrant precinct close to Commercial centre and link to footbridge High School walk only 200 metres to Main street shopping.
- Academy Drive access is to the large grassed land mass, which is suitable flat and meets the town drain. Italian club access from Short street.
- Italian Club building floorplan attached.
- Asbestos Report available to the successful tender.
For sale by Expression of Interest closing Friday 18th August 2023 at 4pm.
For further details contact Fiona Telfer 0407 976 908























































