REDUCED - Vendors relocating and motivated to sell.
Very inviting family Brick and Tile 3 bedroom home with 2 bathrooms.
Offering many extras from 4kw Solar panel system & roller shutters.
Reverse Cycle Air conditioning in kitchen.
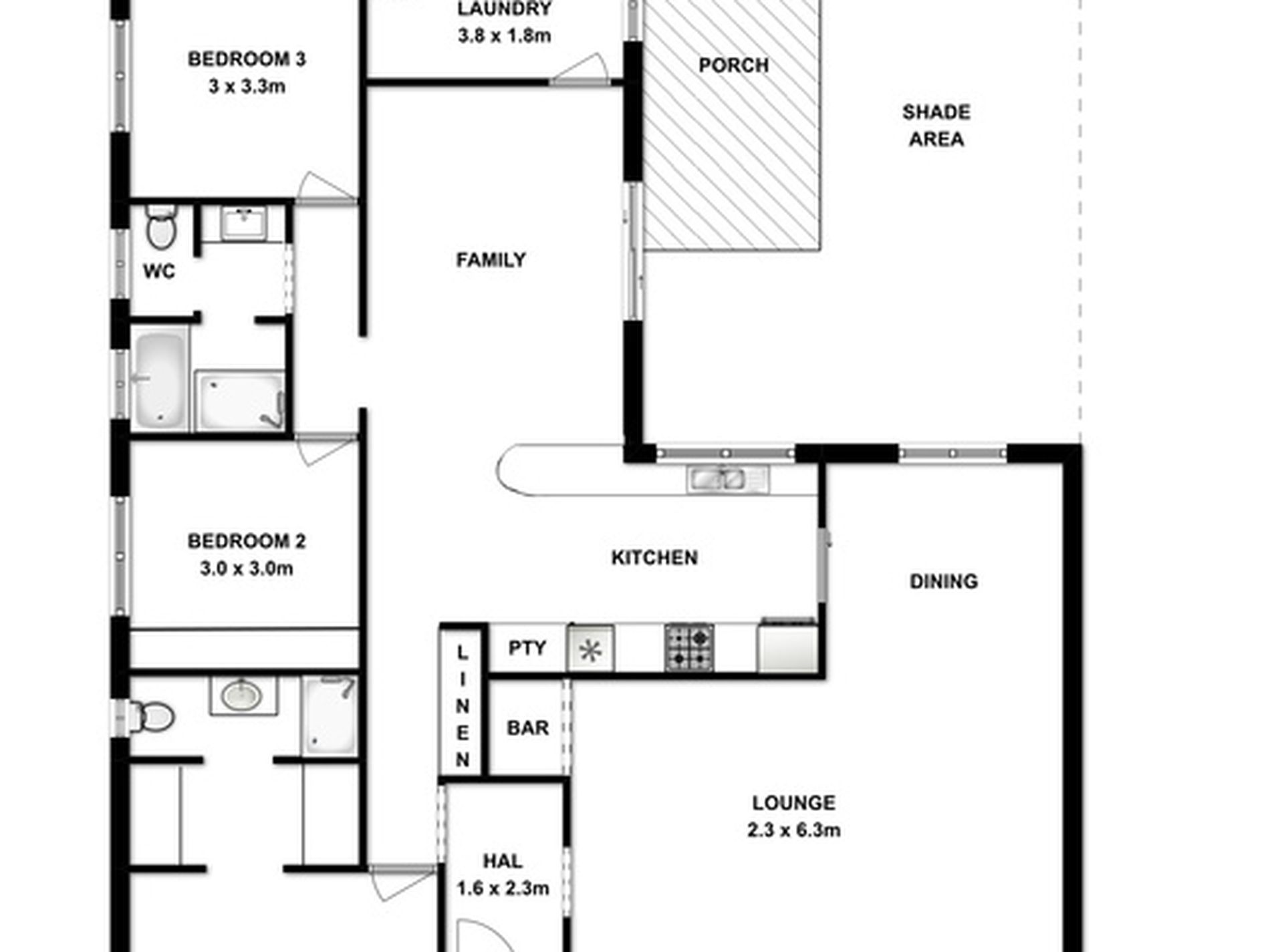
L shaped lounge with built in bar leads around to kitchen with Electric H/P's Wall Oven & grill and pantry with Breakfast bar
Main bedroom with Walk in robes, ensuite and Ceiling fan.
2 other double bedrooms with built-ins and close bathroom access.
Bathroom - bath, shower, powder room and separate toilet
Town supply water and bore equipped with articulated sprinkler system
Great corner block location on a 724m2 allotment
Features
- Reverse Cycle Air Conditioning
- Built-in Wardrobes
- Solar Panels

























