Nestled in a quiet corner of Rendelsham, if its peace and seclusion you’re after then this home could be for you.
The Circa 1900 paddock rock cottage sits neatly cut into the left-hand side of the property. While it presents quaintly from the outside the home has plenty to offer.
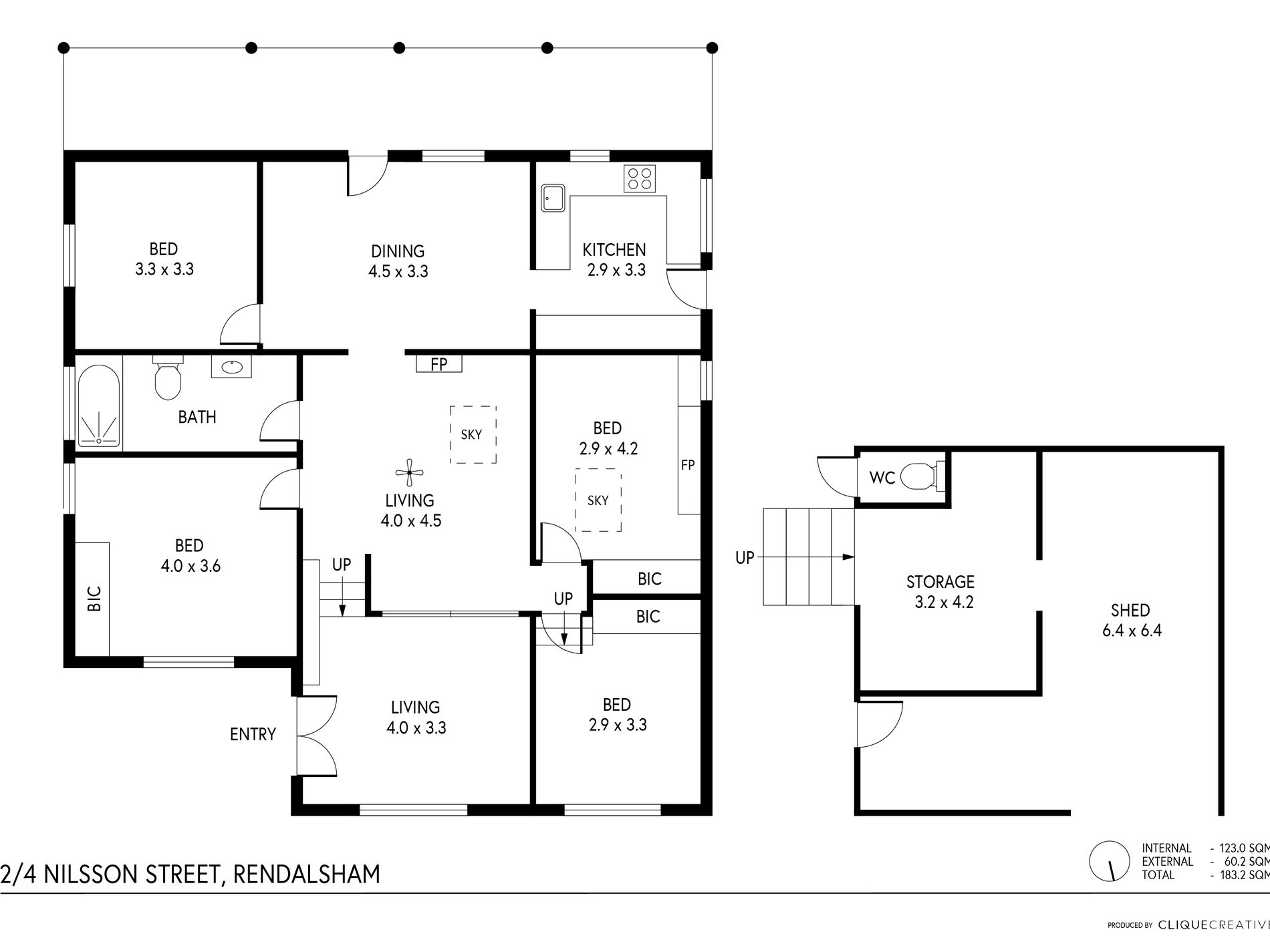
The character filled home features four bedrooms, three with built ins, three with polished floorboards and one with slate floors.
The light filled kitchen offers an abundance of open cupboards and shelves, free standing gas stove, large sink, and space for the whole family during the morning rush.
The spacious renovated bathroom includes shower-over-bath toilet and vanity.
Three living areas are also found in the home, dining and living area feature polished floorboards and a slow combustion wood fire. Skylights in the living and fourth bedroom fill the home with natural light, while the slate floors in the third bedroom and second living give the home a sense of warmth.
Outside the home is full length rear pergola and a sitting area at the front entrance.
The original shed and storage room are located close to the house and a second toilet could be reinstated here as well
Situated over a 1982m2 sloping block the possibilities are endless. Supplementary shedding can be found across the allotment as well. There are many fruit trees, gums and ornamentals to be found. also the original old well.
Close to the primary school and cricket club, this is a great property at a great price point and with a little love and TLC will turn this back into a wonderful family home.
GENERAL PROPERTY INFO
Property Type: Limestone and Colourbond
Zoning: Neighbourhood
Council: Wattle Range Council
Land Size: 1982m2
Lot Frontage: approx. 40.2m
Lot Depth: approx. 49.4m
Aspect front exposure: North
Water Supply: Rainwater and Bore
Services Connected: Power
Certificate of Title Volume 5189 Folio 776
Features
- Shed
- Floorboards
- Grey Water System













































